2135 Country Club Drive, Grinnell, IA 50112
- 3 beds |
- 3 baths |
- 1,608 sqft
Single-Family Home
Built in 1970
0.56acre lot
2 car garage
$146/sqft
Listed 1 month ago
Property Description
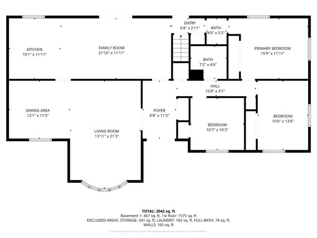
Prime location in the Country Club area, conveniently located near the Grinnell College Golf Course and Merrill Park! This raised ranch home is situated on a spacious ½ acre lot and features 1,608 square feet of finished living space on the main floor. Built in 1970, this home offers 3 bedrooms and immense potential for any future buyer. As you enter, you are greeted by a welcoming foyer that leads into the great room, which boasts vaulted ceilings and a formal dining area. The natural light in this living space is delightful. Off the formal dining room is the kitchen and family room. Adjacent to the primary bedroom is a Hollywood-style half bath, while the other full bathroom is located between the remaining two bedrooms. The expansive open living room, along with the sunroom off the kitchen and den area, presents lots of possibilities! Recent updates include a new toilet in the lower-level laundry area, new faucets in both the kitchen and full bathroom, and the home was pressure washed just this month. The lower level is partially finished, featuring a generously sized rec room and ample storage space. The basement is primed for you to design your own area, whether it be a cozy family room, a home gym, or an office space. The roof was replaced in 2023, and geothermal installation was in 2024, providing a ground source heat pump for heating, cooling, and hot water. The attached 2-car garage adds convenience. Call today to schedule a tour!
- Listing Status:
- Pending
- Date Added:
- February 27, 2026
- Data Last Updated:
- April 4, 2026 at 3:18PM
- Listing Office:
- Ramsey Weeks Real Estate : (641) 236-3141
- Listing Agent:
- Arseneault, Rachel : (541) 915-0940
- MLS ID:
- 735152
- General: Dining AreaSeparate/Formal Dining RoomSee Remarks
- Appliances: DryerDishwasherFreezerMicrowaveRefrigeratorSee RemarksStoveWasher
- Basement: Partially FinishedWalk-Out Access
- Flooring: CarpetVinyl
- A/C: Central AirGeothermal
- Heating: ElectricGeothermalSee Remarks
- General: Enclosed PorchPatioStorageStorage
- Style: Raised Ranch
- Other Structures: StoragePorchScreenedPatioCovered
- Parking: AttachedGarageTwo Car Garage
- Roofing: AsphaltShingle
- General: Vinyl SidingBlockBrick/Mortar
- Road/Access: Concrete
- Originating MLS: DMAAR_DM
- School District: GrinnellNewburg
- County: Poweshiek
- Zoning: RCOUNTRY CLUB HEIGHTS LOT 20 EX TRACT IN NE COR1800811900
- Water: Public
- Sewer: Public Sewer
- Source: DMAAR_DM
This listing courtesy of Arseneault, Rachel , Ramsey Weeks Real Estate
Monthly Payment
- Principal & Interest $
- Property Taxes $
- Home Insurance $
- VA Funding Fee $
Location
Schools Nearby
Bailey Park Elementary School
210 8th Ave, Grinnell, IA, 50112
Grades KG-2
0.89 miles away
Grinnell Community Middle School
132 East St S, Grinnell, IA, 50112
Grades 5-8
2.07 miles away
Grinnell Community Senior High School
1333 Sunset St, Grinnell, IA, 50112
Grades 9-12
0.94 miles away


